The XL-21 Low-Voltage Power Distribution Cabinet is suitable for power distribution in power plants and industrial and mining enterprises. It is used as a power distribution system for three-phase, three-wire systems with AC voltage of 500V and below.
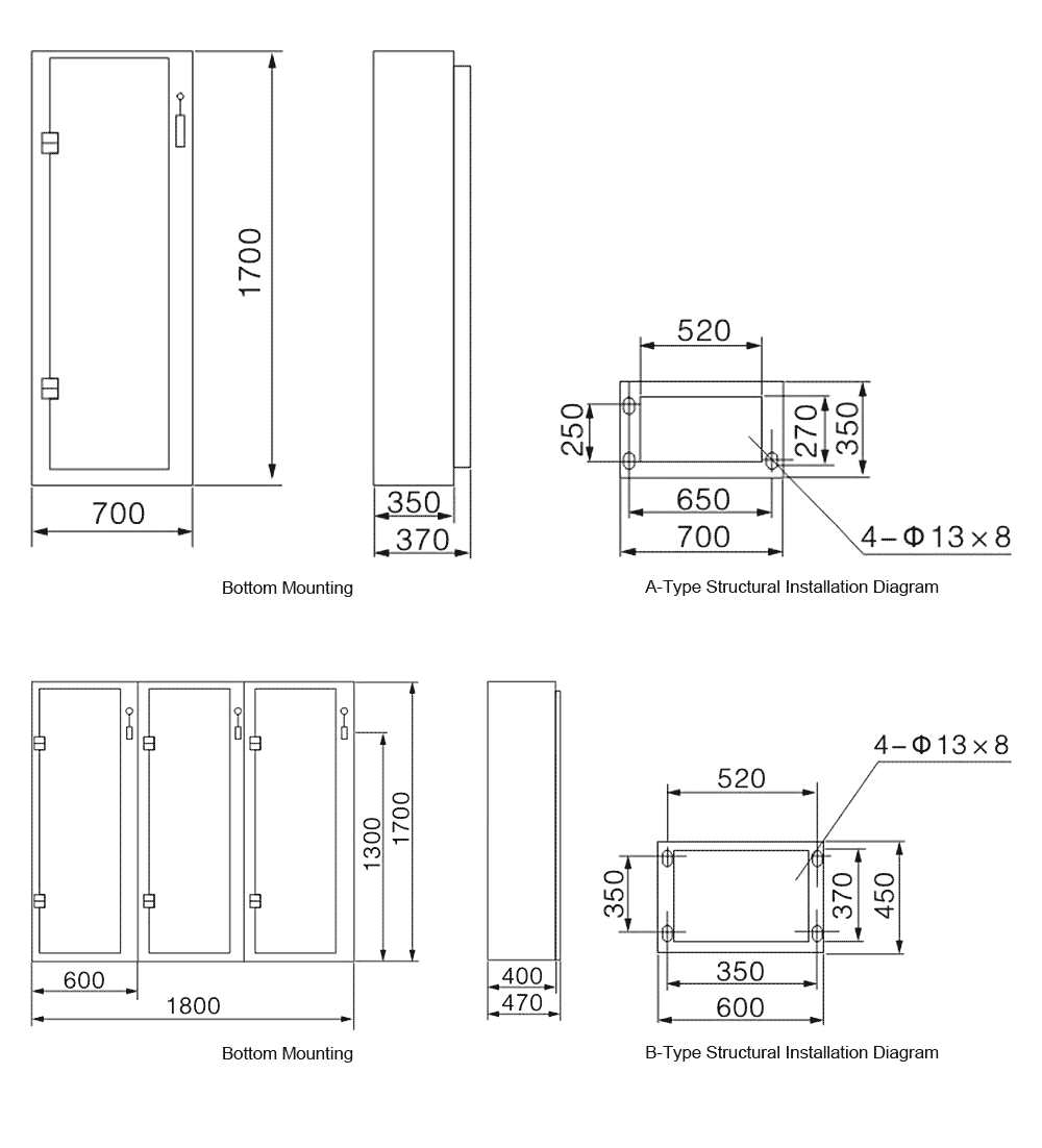
The XL-21 low-voltage power distribution cabinet is an indoor wall-mounted device that all allows for front access maintenance.
The XL-21 Low-Voltage Power Distribution Cabinet is enclosed, with its outer shalll made of bent steel plates. The operating handle for the knife switch is installed on the upper part of the right pillar in front of the cabinet and can be used for switching power sources. A voltmeter is installed on the front of the distribution box, indicating the voltage of the busbar. There is a door in front of the distribution box, which, when opened, exposes all the equipment inside for easy maintenance and repair.
The distribution box uses a new type of domestically designed components, and with compact structure, convenient maintenance, and flexible combination of circuit schemes. In addition to air circuit breakers and fuses for short circuit protection, the distribution box is also equipped with contactors and thermal relays. Operation buttons and indicator lights can be installed on the front door to the cabinet.
◇ Low-Voltage Power Distribution Cabinet

◇ Air Circuit Breaker

◇ Current Transformer
